www.bonn23.com

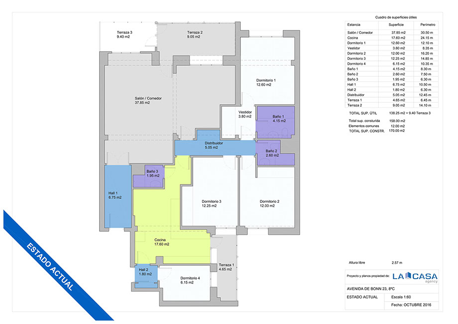
Plano del piso

Piso que se compone de 2 hall de entrada independientes, un gran salón con dos terrazas, una cerrada y la otra abierta, la cocina esta orientada hacia el patio interior, dispone de un total de 4 dormitorios, el dormitorio principal es exterior con baño en suite y vestidor, los 3 dormitorios restantes dan hacia el patio interior y 2 baños restantes con plato de ducha.