www.tunaveenpinto.com

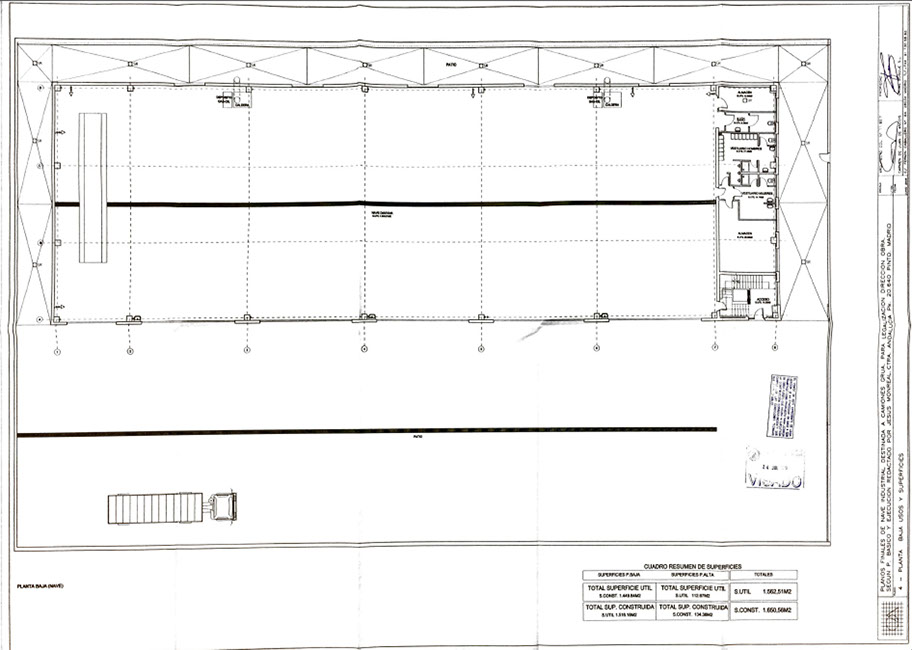
Plano de la nave

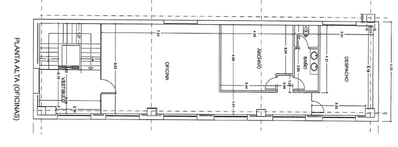
Esta nave industrial tiene forma rectangular con unas dimensiones de 70,10 m de largo por 21,02 m de ancho, ocupando una superficie útil total en planta baja de 1455,20 m² y en planta alta destinada a oficinas de la propia actividad, con una superficie útil de 112,97m².

 

En la nave existe un módulo con dos alturas destinadas a:

 

  • Planta baja (Entrada, escalera, Almacén, Aseos y vestuarios, Aseos minusválidos, cuarto compresor)
  • Planta alta (Escalera, Oficina, Distribuidor, Archivo, Aseo, Despacho)

 

Planta baja

Detalle planta baja

Planta alta (oficinas)